Ficha
Oportunidad de inversión: estructura de vivienda unifamiliar en construcción
Albinyana (Les peces) - REF. 2020

212 m2

6

2
venta: 120.000 €
Descripción
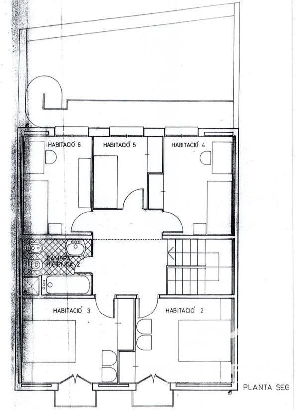
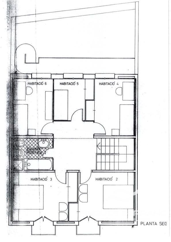
Se ofrece una estructura de vivienda unifamiliar entre medianeras en una ubicación estratégica, ideal para constructores e inversores que busquen finalizar una obra con gran potencial de rentabilidad. El proyecto cuenta con los muros de carga y la cimentación ya ejecutados, ahorrando tiempo y recursos...Descripción del proyecto:.-Superficie total construida: 212 m² distribuidos en tres plantas..-Distribución prevista:.-Planta baja: garaje amplio, zona de acceso y un baño..-Planta primera: salón-comedor espacioso, cocina independiente, un dormitorio y baño completo..-Planta segunda: cinco dormitorios (tres dobles y dos individuales) y un baño..-Diseño versátil: posibilidad de personalización según las necesidades del comprador..-Detalles adicionales: terrazas en las plantas superiores y buena iluminación natural...Ventajas del proyecto:.-Ahorro significativo: Estructura y elementos básicos ya construidos..-Ubicación estratégica: Zona con alta demanda residencial..-Flexibilidad: Ideal para adaptarlo a vivienda familiar o para inversión...Una excelente oportunidad para completar una obra con gran potencial de revalorización. Contáctanos para obtener más información sobre el proyecto y visitas.
Características
Precio Venta 120.000 €
Año de construcción 1985
Construidos 212 m2
Útiles 148 m2
Precio/m² 566 €/m²
Dormitorios 6
Baños 2
Estado En construcción
Calificación Energética (G) VER
Escalas de eficiencia


-
-

Tu agente
Javier Ortega Pancorbo
Contáctanos

Si deseas más información sobre esta propiedad, por favor, rellena el formulario.

 Sí, he leído y/o acepto las Condiciones de uso y la Política de privacidad
Inmuebles similares:
 
110.000 €
Ref. 2364  92 m2  3  1

Casa de pueblo a reformar, reformala a tu gusto, situada en zona tranquila entre El Vendrell y las pederes de Santa Oliva, ahora solo queda que le des rienda a tu imaginacion, la visitamos??, llamanos!!

 
126.000 €
Ref. 2368  240 m2  4  2

Se venden dos casas de pueblo para rehabilitar íntegramente, situadas en Carrer Roda nº 4 y nº 6, en El Vendrell, en una ubicación céntrica y bien comunicada, ideal tanto para proyecto residencial como para inversión.

La primera vivienda cuenta con 96 m2 construidos y la segunda con 188 m2, ofreciendo en conjunto un gran potencial de desarrollo. Las propiedades se encuentran totalmente para reformar, lo que permite diseñar los espacios a medida y adaptarlos a cualquier necesidad.

Gracias a la superficie y a la normativa urbanística de la zona, existe la posibilidad de:

Rehabilitar ambas casas de forma independiente.

Unificarlas en una única vivienda de mayores dimensiones.

Derribar las construcciones actuales y edificar un nuevo edificio de planta baja + 3 plantas, opción especialmente atractiva para promotores o inversores.

Además, existe la opción de adquirir los dos inmuebles esquineros colindantes, lo que permitiría edificar la totalidad del chaflán, aumentando de forma notable la edificabilidad, la visibilidad y el valor del proyecto final.

Ubicadas en una calle tranquila del casco urbano, con todos los servicios a pie: comercios, colegios, transporte público y zonas de interés del centro de El Vendrell.

Una excelente oportunidad de inversión en una de las zonas con mayor proyección del municipio, con múltiples posibilidades de aprovechamiento urbanístico.

Inmobiliaria en Segur de Calafell
Nº. de colegiado: A12200. Segur de Calafell AICAT Nº 8569 y Cunit AICAT Nº 7139

CONTÁCTANOS

Carretera de Barcelona 109
43882 Segur de Calafell